 |
| 物件名称 | 高松中央ビル[0] (物件ID:tte1111107834)
|
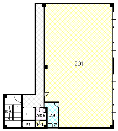
| 部屋 | 201号(ID:tet1411808007) |
現況 | 空室(最終確認日:2017/06/29) |
| コメント | 2F全部 |
| 所在地 | 〒761-8056 高松市上天神町559-3 |
| 交通 | ゆめタウン前バス停 徒歩約7分 |
| 賃料 | 352,000円 |
| 共益費 |
32,400円 |
| 敷金 | 6ヶ月 |
| 仲介手数料 | 賃料(&駐車料)1ヶ月分 |
| 駐車場 | 有 5,400円 |
| 構造 | 鉄筋コンクリート造 5階建 |
| 建物面積 | [専有面積] 222.36u(約 67.26坪) |
| 築年数 | 昭和54年12月 |
| 水道 | メーター式 |
| ガス | LP |
| 電気 | 四国電力 |
| 排水 | 公共下水 |
| エアコン | 有 |
| 設備 | エレベーター |
| 備考 | 火災保険加入の義務有り。 |
| ゼンリン | 高松 148P D-2 |
|