 |
| 物件名称 | 木太町貸テナント[0] (物件ID:tte1763103313)
|
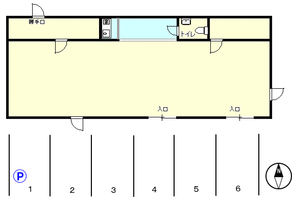
| 部屋 | 1F(ID:tet1763103593) |
現況 | 空室(最終確認日:2025/11/18) |
| コメント | 室内写真有り。 |
| 所在地 | 〒760--0080 高松市木太町1176-1 |
| 交通 | 琴電長尾線林道駅 徒歩約6分 |
| 賃料 | 220,000円 |
| 共益費 |
− |
| 敷金 | 6ヶ月 |
| 礼金 |
1ヶ月 |
| 仲介手数料 | 賃料(&駐車料)1ヶ月分 |
| 駐車場 | 有 前面6台込み |
| 構造 | 鉄筋コンクリート造スレート葺 4階建 |
| 建物面積 | [専有面積] 148.28u(約 44.85坪) |
| 築年数 | 昭和60年2月10日 |
| 水道 | − |
| ガス | − |
| 電気 | 四国電力 |
| 排水 | 公共下水 |
| エアコン | − |
| 備考 | 火災保険加入の義務有り。 |
| ゼンリン | 高松 127P B-1 |
|